令和07年11月22日 13時04分 更新
次回更新予定日:令和07年11月23日
坂戸不動産株式会社
お急ぎの方はこちらまでお電話ください
049-281-2323
トップページへ
>
居住用物件一覧へ
> 物件情報
駅別一覧
間取一覧
写真一覧
地図一覧
地域一覧
物件番号
写真・画像
価格
住所
土地面積
和暦築年月
間取
建物面積
小学校区
中学校区
詳細
画像
Bk29737
1,680万円
坂戸市大字島田
142.3m
2
H09/04
4SLDK
99.51m
2
勝呂小学校 1730m
住吉中学校 3300m
閑静な住宅街に立地!並列3台駐車可(車種による)、内外装フルリフォーム(令和6年11月完了)
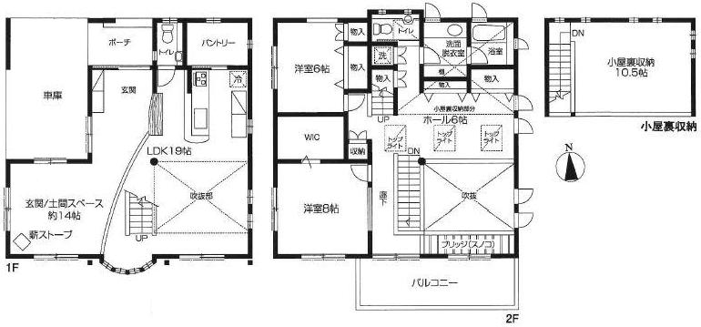
Bk31685
6,500万円
東松山市あずま町1丁目
347.2m
2
H25/06
2LDK
160.5m
2
野本小学校 1730m
東松山南中学校 3500m
周辺に商業施設充実、生活に便利!オール電化・太陽光・薪ストーブ完備!元モデルハウスとして使用!
ページトップへ