31428:新築戸建 天沼新田
価格 | 3,280万円 |
---|---|
所在地 | 川越市大字天沼新田 |
交通 | 東武東上線 鶴ヶ島駅まで 徒歩8分 |
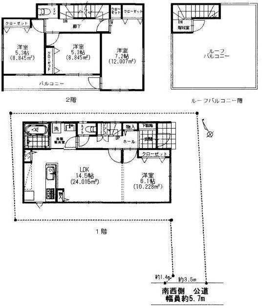
間取 | 3LDK |
土地面積 | 124.48m²(37.65坪) |
建物面積 | 99.22m²(30.01坪) |
私道面積 | - |
築年月 | 2025/02 |
学区 | 小学校区:名細小学校 1,280m 中学校区:名細中学校 1,080m |
建物構造 | 木造 |
---|---|
階建 | 地上2階建 |
建ぺい率 | 60% |
容積率 | 200% |
地目 | 宅地 |
用途地域 | 無指定 |
土地権利 | 所有権 |
取引態様 | 仲介 |
引渡時期 | 相談 |
セットバック | |
---|---|
接道 | 南西 5.7m(幅員) 公道 3.5m(接面) |
諸費用 | |
他法条例 | |
建築確認番号 | 第24UDI1S建02606号 |
取引条件有効期限 | 令和07年10月19日 |
特色
駐車場、南道路、公営水道、公共本下水、都市ガス、ハザードマップ:該当なし
コメント
東武東上線 鶴ヶ島駅徒歩8分!周辺に商業施設充実、生活に便利!閑静な住宅街に立地!本下水・都市ガス!
周辺地図
位置情報に関するご注意:現在位置情報は精査中の為、正確ではない場合があります。あくまで参考程度の情報となります。